絲線試樣做拉伸實驗用什么夾具?
來源:天氏庫力 發布日期
2019-10-06 瀏覽:
絲線拉伸疲勞是機械、建筑、航天、航空、紡織中普遍遇到的問題。材料的拉伸疲勞行為直接影響到工業中龍門吊中的鋼絲繩、傳動系統中皮帶的安全設計、壽命評估等。同時在紡織行業中,絲線的拉伸彈性疲勞也是關注重點,比如材料能承受多大的拉力而不變形,保證紡織物外觀不受損等。
正因為這些原因,使得絲狀材料拉伸疲勞成為科研的熱點。常規的絲狀材料拉伸試驗夾具分為兩種類型:直接通過兩個鉗口夾緊試樣,或通過上下兩個導向輪纏繞試樣。使用鉗口夾緊的方法不容易保證試樣長度方向和拉伸力的方向保持一致;而導向輪纏繞試樣的方法在拉伸力大的情況下容易發生滑動。這樣就很難保證試驗數據和結果的準確性,而且增加了實驗人員操作試驗的難度。
因此,需要在現有的試驗設備基礎上,針對絲狀材料試樣研發出一種新型的夾持絲狀材料的夾具,從而提高絲狀材料試驗數據的準確性,降低實驗人員進行絲狀材料拉伸試驗時的操作難度,進一步促進機械、建筑、紡織等領域中對絲狀材料疲勞行為的研究。
本文為大家介紹一些絲線產品做拉伸的一種夾具:

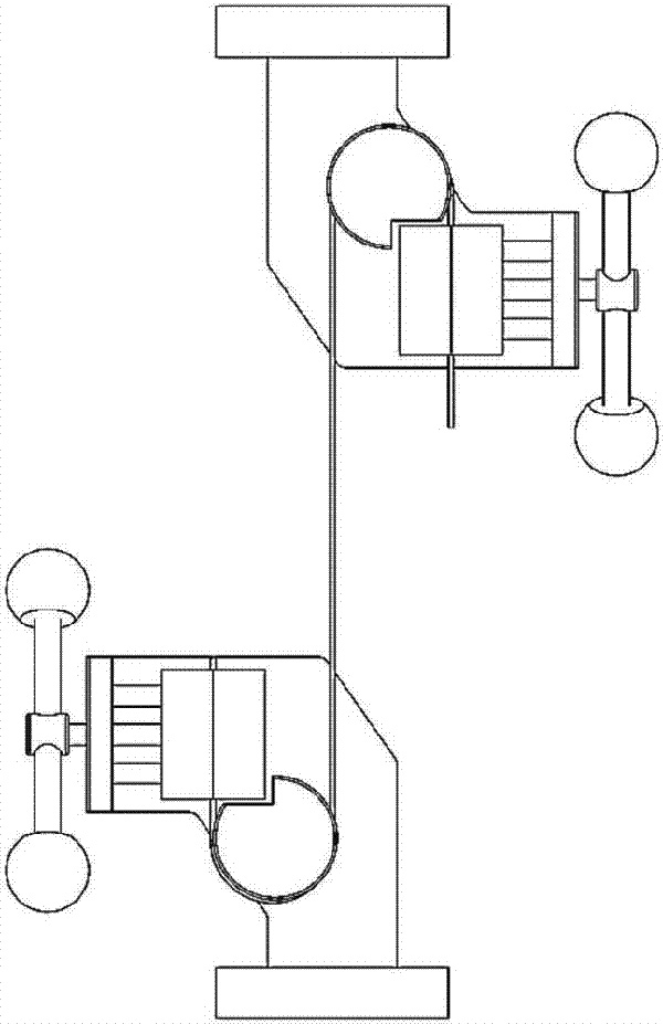
絲線拉伸纏繞式夾具示意圖
絲線拉伸纏繞式夾具實拍
夾具介紹:
包括上部夾具和下部夾具,所述上部夾具和所述下部夾具結構相同且中心對稱,均由夾具主體和安裝在所述夾具主體上的導向輪、擋塊、活動夾塊、導軌棍和頂銷組成;
夾具主體均包括主板和側板,所述側板垂直設置于所述主板外端一側;
該夾具導向輪固定于所述夾具主體的主板,并與其側板同側;上部夾具和下部夾具的兩個所述導向輪具有豎直方向的公切面且分設于該公切面兩邊;
該夾具擋塊固定于所述夾具主體的主板,兩個所述擋塊位于兩個所述導向輪之間并分別與兩個導向輪相接觸;所述活動夾塊設置于所述擋塊外側,所述擋塊與所述活動夾塊的相對面為夾持面,該夾持面與所述導向輪相切,同時與兩個所述導向輪的公切面平行;所述活動夾塊外側的中心設置有軸承,外側的兩端設置有螺紋孔;
該夾具導軌棍垂直于所述夾持面設置,其內端螺紋連接于所述活動夾塊的螺栓孔,外端穿過所述夾具主體的側板上的通孔;
該夾具頂銷垂直于所述夾持面設置,其內端安裝于所述活動夾塊的軸承中;所述頂銷設有螺紋且穿過所述夾具主體的側板上的螺紋孔,所述頂銷外端設置有手柄;
絲線拉伸纏繞式夾具用法說明:
試驗時絲狀試樣拉伸于兩個所述導向輪之間,一端由上部夾具的導向輪繞過、另一端由下部夾具的導向輪繞過,繞過導向輪的絲狀試樣末端夾持在所述活動夾塊與所述擋塊之間;兩個導向輪之間的絲狀試樣區段與夾持在所述活動夾塊和所述擋塊之間的絲狀試樣區段在同一平面上且相互平行。
絲線拉伸試驗設備:

絲線拉力試驗機
推薦閱讀
【本文標簽】:絲線拉伸試驗夾具
【責任編輯】:天氏庫力 版權所有:http://www.wzfyz.cn/轉載請注明出處